


作为美的在梧州的项目,设计师在设计叙事过程中,领悟到两个问题——不能将设计本身作为设计的亮点,以致弱化要呈现的叙事主体;不能过于“现代”,以致在叙事中,在观者心理层面本应是循序渐进的递进状态,却成凿枘不投的结果。因此,设计师在材质上只利用简洁的方式,以石材的原有肌理稍作变化,将原木色融于自然光和人工光源混元之中,将观者的注意力引向表达叙事之物,而将设计本身尽量弱化。
“太多的眼泪,是没有教养的表现。”这是英国旧式贵族斯巴达似的看法。话不好听,仔细一想的确有理。设计叙事性的空间,只应娓娓道来便好,不必慷慨激昂的。
建筑外观





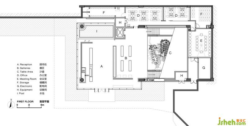
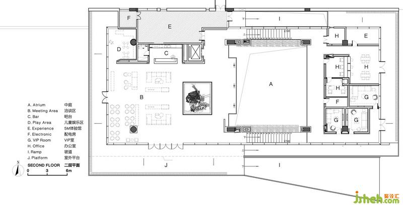
总平面图
设计公司
设计公司
设计公司
设计公司
设计公司