
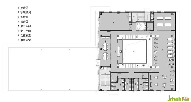
△ 二楼前厅&珍珑棋室
相较于首层的活泼写意,二层会所的色彩布置则更为沉静。无锡售楼处设计与前厅相对的珍珑棋室,在木饰面映衬下颇有几分东方的儒雅。


△ 健身区
健身区占据东侧开间,临窗的条件和高度优势使运动人士在挥洒汗水的同时也能保持着疏朗的心情。红色的水滴艺术装置既起到分隔的功能,也平衡了空间的色彩,使运动的瞬间更添热力和动感。
孚曼对生活洞察和共情,总是让他们的设计显得贴切又温柔。直线与曲线,风和雨,目睹的和听闻的,都在这里融合相交,不着痕迹地熨帖人心。
首层平面图
二层平面图
更多无锡售楼处设计请关注聚设汇装修平台: