欢迎光临聚设汇,装修找设计就上聚设汇!
   咨询电话:15602987227
登录    注册
聚设汇
首页 > 商业 > 上海道生天合展厅设计

上海道生天合展厅设计

这一参观路线虽被围合包裹,同样也注重呼吸感与透气性,踏步、扶手、以及顶部皆能捕捉其踪迹。利落线条、内嵌灯带与自然光影的介入增添韵律之美,也化身行径导向,自有一番随性意味。

“天地并生,万物为一”,上海道生天合展厅循着场域的逻辑脉络,在动态中抒写建筑与展陈美学,并将生态环保主张贯彻其中,一切既呼应企业文化及品牌理念,又立足空间表达与展示陈列的平衡之妙,在自然、艺术的场景中,以设计赋能,让穿梭之旅既轻盈又踏实!

 

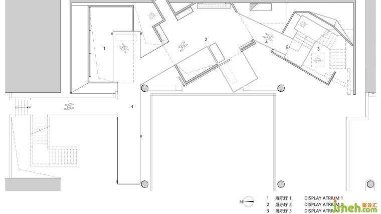
1F平面图

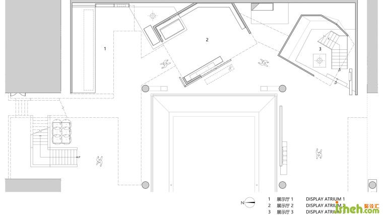
2F平面图

更多展厅设计请关注聚设汇装修平台:

壹舍设计创始人

设计收费:面议 元/平             

擅长类型: 地产、办公室、店铺

在线咨询

扫描二维码关注我们的微信

深圳市聚设汇文化传媒有限公司
主编热线:15602987227
总部:深圳市罗湖区梨园路128号宝能汽车大楼416单元
佛山、东莞、成都、重庆、福州、厦门、南昌、武汉、
杭州、苏州、温州、郑州、长春、沈阳、贵阳、柳州、
哈尔滨、九江等城市设立办事处
© 2017-2021 Jsheh.com 版权所有 粤ICP备17079093号
展开
回到顶部