欢迎光临聚设汇,装修找设计就上聚设汇!
   咨询电话:15602987227
登录    注册
聚设汇
首页 > 商业 > 上海嘉俊庭展示中心设计

上海嘉俊庭展示中心设计

屏风化身背景墙,撷取其波浪状语汇,让水吧区浸润在一片流动之中。漂浮的廓形、开放的格架、精选的器皿摆件,上海展示中心设计在灯光的映衬下,实用功能与优雅审美相互成就。

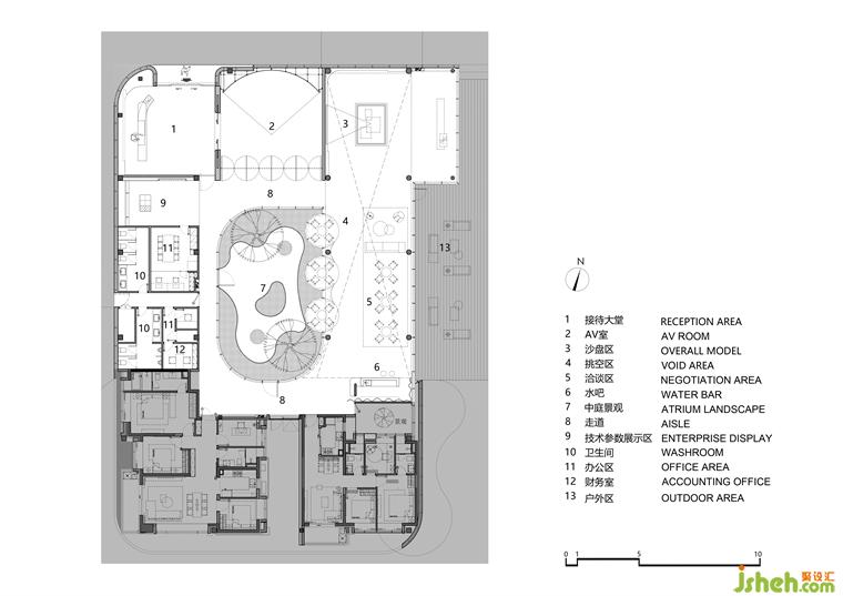
△ 展示中心平面图

更多上海展示中心设计请关注聚设汇装修平台:

壹舍设计创始人

设计收费:面议 元/平             

擅长类型: 地产、办公室、店铺

在线咨询

扫描二维码关注我们的微信

深圳市聚设汇文化传媒有限公司
主编热线:15602987227
总部:深圳市罗湖区梨园路128号宝能汽车大楼416单元
佛山、东莞、成都、重庆、福州、厦门、南昌、武汉、
杭州、苏州、温州、郑州、长春、沈阳、贵阳、柳州、
哈尔滨、九江等城市设立办事处
© 2017-2021 Jsheh.com 版权所有 粤ICP备17079093号
展开
回到顶部