04宴会之乐各得其所
私宴厅内置轨道移门,可基于使用场景需求自如开合。在设计过程中既尊重动作尺度,又强调和谐细致的划分,与配套服务的合理置入,这充分体现着设计师的周全考量。


铁板烧料理区以金属网格的背景墙,实现材质、光影、层次的个性变化,入口处的套口造型与圆弧门扇,也尽显直与弧、刚与柔的碰撞与消融。

私宴厅延用相同材质、造型手法与细节处理,以强调整体统一性。壁布上的连纹图案恰似浮雕,又于共性之中凸显一丝个性。窗外奔流不息的黄浦江,与上海当代艺术博物馆折射出新旧共存的城市记忆,也交汇出人与室内、环境的多维情感,塑造独特的空间体验。
05文娱之地释放活力
为满足客户孩童的学习与玩乐需求,还于此设置文娱活动区,包括音乐室、学习区、体能训练区、攀岩墙等。音乐室从孩童酷爱的“星球大战”主题中汲取灵感,勾勒太空舱式造型,并于镜面玻璃之后加入黑武士图案化身,以多彩变幻的灯带渲染动感酷炫的氛围。
极具呼吸感的学习区,顶面以发光灯膜铺就,圆弧元素更加自如,其走向与分布打破固守的韵律,也更加契合使用者的认知与天性。



△剖面图
办公空间不只是工作环境,更是展现企业理念与惬意生活的多元平台。设计师以现代主义风潮、先锋性与包容感,探索上海易成办公室的日常与未来,在一步一景中刻录艺术与趣味,以丰沛的设计想象与矛盾美学张力,酝酿着未来的无限可能性!





△ 效果图
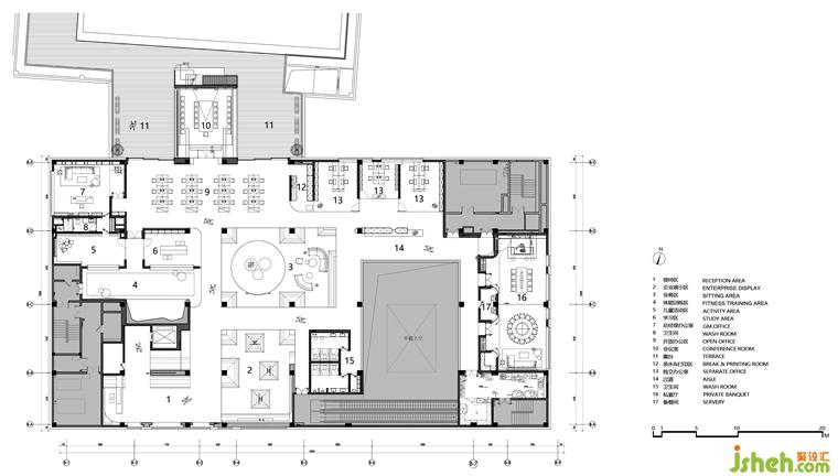
△ 平面图
更多办公室设计请关注聚设汇装修平台: