欢迎光临聚设汇,装修找设计就上聚设汇!
   咨询电话:15602987227
登录    注册
聚设汇
首页 > 商业 > 嘉华国际南京嘉璟峰售楼处设计

嘉华国际南京嘉璟峰售楼处设计

秦淮烟水间,滋养着一方风物与人文。捕捉水的多样性态为切入点,售楼处设计将生态元素、多元色彩与现代技术在一隅自如交互,透过造物和陈设的描摹,一境一融,唤醒城市记忆。

作为室内外衔接的纽带,L形的休闲露台,游目骋怀,入眼皆是动人篇章。以整齐且放松的序列,亲密无间的拥抱着自然,并让这种特质不断被放大与感知。

嘉华国际南京嘉璟峰售楼处,在设计落笔上,秉承一以贯之的现代简约手法,去繁从简,关注设计本身的纯粹,售楼处设计使处于建筑之内的人们与之联结。在美学调性上,以访客体验为基准,以隐贵格调为补充,以潮流艺术为妆点,引发人们情绪想象的触点,书写新都市意境生活。


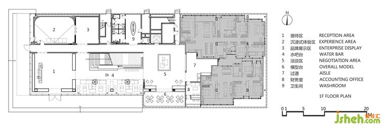
1F平面图

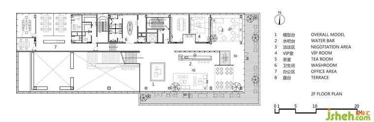
2F平面图

更多售楼处设计请关注聚设汇装修平台:

壹舍设计创始人

设计收费:面议 元/平             

擅长类型: 地产、办公室、店铺

在线咨询

扫描二维码关注我们的微信

深圳市聚设汇文化传媒有限公司
主编热线:15602987227
总部:深圳市罗湖区梨园路128号宝能汽车大楼416单元
佛山、东莞、成都、重庆、福州、厦门、南昌、武汉、
杭州、苏州、温州、郑州、长春、沈阳、贵阳、柳州、
哈尔滨、九江等城市设立办事处
© 2017-2021 Jsheh.com 版权所有 粤ICP备17079093号
展开
回到顶部