
开放办公区的一隅还配有讨论区,此外也还预留出两间独立会议室与之互为补充。既有轻松氛围,也有私密场景,无论是用于非正式会谈,还是商务沟通,皆具灵活性与可选性。
操刀独立办公室时,设计师同样以简练的笔法描绘,开敞与自然是不变的主题,回归纯粹,唤起情感触点。


主理人办公室设计延续其由衷挚爱的现代简约风范,选材和用色皆和外部空间有着一定的关联。这里兼顾了办公、待客、小型讨论的多样化用途,此外还置入相应的配套支撑,强化舒适度与便利性。

暗黑基调打底,包容、低调且高级的质感油然而生。石材上凹凸打磨的痕迹,一定程度上弱化了方正的棱角,办公室设计显得松弛与率性,也滋养出韵味与光泽,别有一番玩味。
南侧和西侧分设两个露台,让员工也能置身于户外自然之中,游目骋怀,与蓝天绿意相依偎,在工作与闲适的状态间无缝切换。
壹舍设计新办公室,立足开敞通透的架构,让室内与户外、建筑与景观紧密交融,又以简约的设计语言,饱含人文关怀的细节巧思,显得灵动又舒适。设计师方磊补充说:“此次乔迁,不仅仅是办公环境的改变,还意味着壹舍团队对新篇章的实践与期待,承载着更多的美好愿景与希冀。”
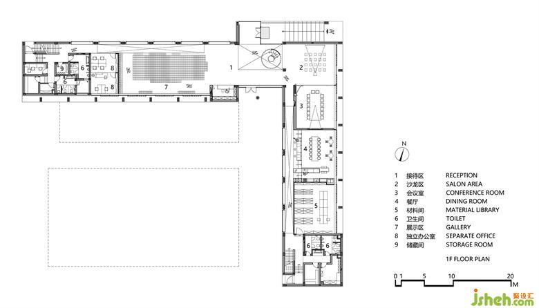
1F平面图
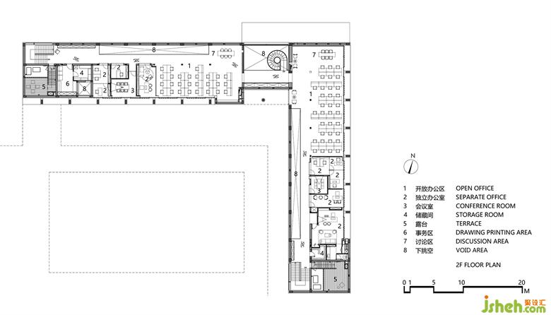
2F平面图
更多办公室设计请关注聚设汇装修平台: