中央的玻璃洞口,在保证安全的前提下弱化护栏,进一步流露轻盈透气的观感。俯瞰的目光正好聚焦在一楼中心处,这也是对上下一体的把握与呼应。
突破定式 外领潮流
考虑到建筑条件以及层高的限制,顶面保留了原始裸露的梁位及管道设施,并以此试图构筑一种介入与划分的状态,让新与旧融合碰撞,原始与再造自然对话。

场景区域的构建,是实现与访客直观沟通、引发共鸣的一种颇为有效的方式。摒弃单纯的展现形式,通过生活场景及使用区域的模拟,在真切表达其结构、功能及应用之余,也散发出和谐的美感与内在的优雅。
优质的材料和细节层次是关乎室内体验感的重要因素,基于OOMOO与木有着千丝万缕的联系,于一二层分别设置材料展示区,着力诠释木的本质精髓。整体上同样强调统筹木质与色彩、光影、纹理等的综合使用,既有简约干练的气质,又不乏摩登新潮的格调。
目之所及,借由木质与玻璃、金属及皮革的融合碰撞,精致落在细微点滴之处,意式低奢的不凡质感呼之即出。

设计概念过程稿
剖面图
OOMOO之家上海旗舰展厅宛如一个容器,家具、陈设、装置、艺术品等诸多元素在其中逐层渗透,显得流畅、灵动且充满张力。以宜人的尺度建构开放式生活,打破界限,赋予自在洒脱的感官享受,传达出OOMOO极致、张扬、独一、潮流的调性。同时在产品与空间“你中有我、我中有你”的紧密关联中,也透露着壹舍对于当代人居美学的极致思考。
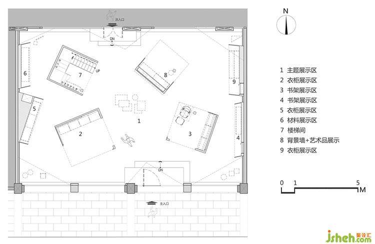
1F平面图
2F平面图