
主卫遵循对称手法,矩形体块与圆弧形态有机搭配,其背后则是依据人在场景中的功用及感受来排布。加上对细节、造型、灯光的谨慎把握,共同演绎大气格调。售楼处设计

次卧套间功能齐全,睡眠区注重柔软雅致,以素色铺陈室内,加入些许宝石绿妆点,沐浴在自然光之下,更显宁静平和、含蓄低调。
套间一隅设独立衣帽间,并嵌入灯带为其添上独特的情调。这既是空间的合理化利用和居者需求的完善,亦是生活品质的缩影与细节的极致追求。
开放式书房与睡眠区相望,融合了现代人的功用性与审美需求,并予以其更深的自由度与灵活性。多功能书架,在一脉相承的设计理念中,呈现充沛的线条律动,渲染宽广的精神境域,尽显高级细致之美。
适度的粉嫩昭示小公主的私人领地,以马卡龙色配合低饱和度的色彩进行叠加组合,辅以音乐元素妆点,一种欢快、活泼、灵动与童趣充盈其间。
设计师方磊表示:“设计的价值在于解决问题,引导人们养成良好的生活方式与习惯。整个项目既试图满足对居家享受的追求,又希望赋予其卓越的商业之势,在二者的和谐统一中,让设计成就更多的可能性。”
纯粹的材质,精致的工艺,软硬配比的调和,让中南锦时布拉格的生活感观与商业调性恰到好处。这是壹舍设计团队对商业与住宅一体化复合型空间的尝试,亦是对边界的一次探索,以及对未来业态重构、精英人士工作与生活理念的一次全新突破。售楼处设计
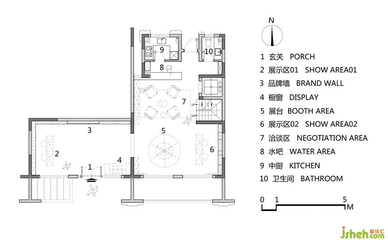
1F平面图
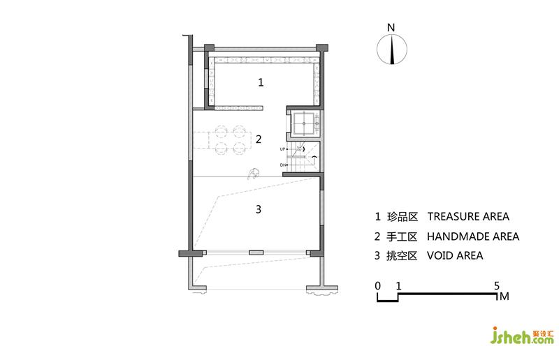
1F夹层平面图
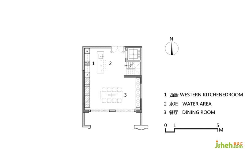
B1F平面图
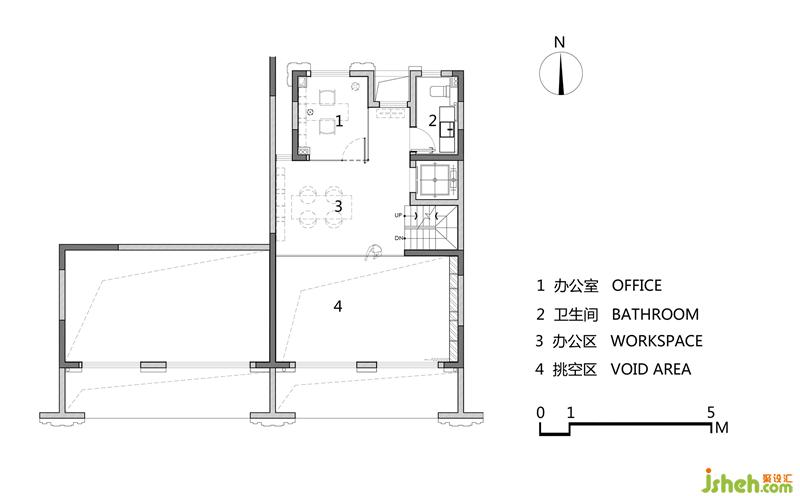
B1F夹层平面图
2F平面图
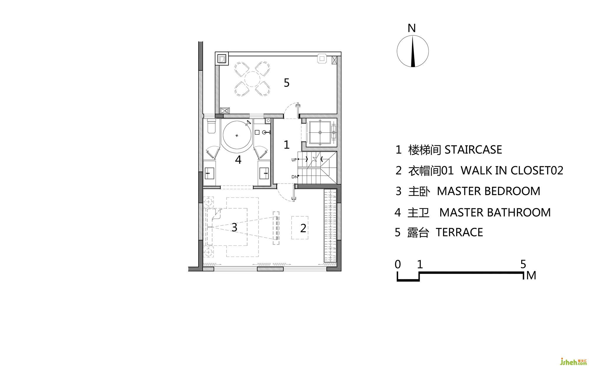
3F平面图