欢迎光临聚设汇,装修找设计就上聚设汇!
   咨询电话:15602987227
登录    注册
聚设汇
首页 > 家装 > Jolie Boîte 珠宝盒家装设计

Jolie Boîte 珠宝盒家装设计

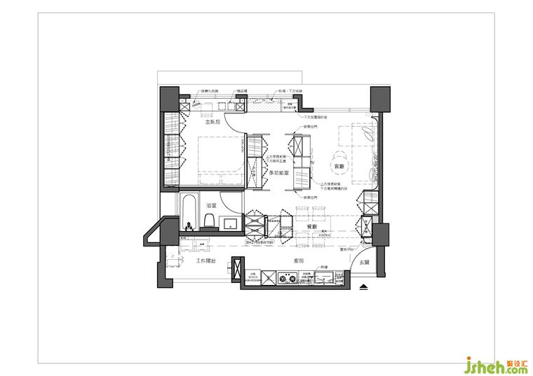
美型厨具座落入门玄关附近,高贵的藕灰色嵌入于墙面,家装设计透过餐厅上方与收纳柜体连接而成的藕色拱门做为空间的框景,界定餐厅与客厅的区域。在材质上,金色的金属点缀式的从厨房壁砖延伸至客厅家具桌脚,再跳跃到主卧旋转镜框,串联起开放空间,并且营造属于轻熟女的奢华质感。

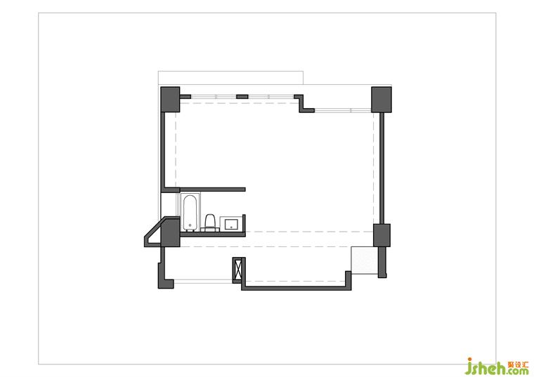
客厅与主卧墙面做适度的留白,采用可映衬的特殊图料当背景,让不但画作有可以展示的空间,也为此住宅创造出独一无二的个人品味。

更多家装设计请关注聚设汇装修平台:

尔声空间设计有限公司

设计收费:1500 元/平             

擅长类型: 豪装、豪宅、别墅

在线咨询

扫描二维码关注我们的微信

深圳市聚设汇文化传媒有限公司
主编热线:15602987227
总部:深圳市罗湖区梨园路128号宝能汽车大楼416单元
佛山、东莞、成都、重庆、福州、厦门、南昌、武汉、
杭州、苏州、温州、郑州、长春、沈阳、贵阳、柳州、
哈尔滨、九江等城市设立办事处
© 2017-2021 Jsheh.com 版权所有 粤ICP备17079093号
展开
回到顶部