欢迎光临聚设汇,装修找设计就上聚设汇!
   咨询电话:15602987227
登录    注册
聚设汇
首页 > 家装 > 冬日的阳光

冬日的阳光

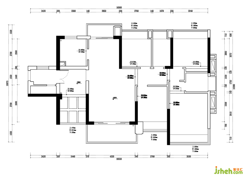
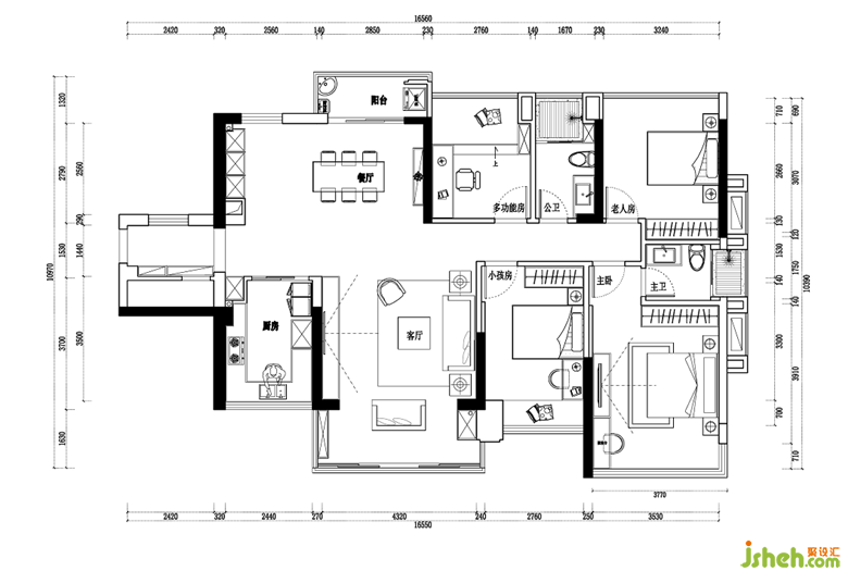
※阳台

外阳台改为内阳台,留了足够的空间亲子共读。每次家庭出游都有很多值得纪念和回忆的,小书柜专门留出一格来摆放。照片是陪着小朋友一起长大的见证,是陪着爱人一起慢慢变老的痕迹。

※书房

其实,业主说这个小书房是一家人最喜欢待的地方,看书的看书,玩电脑的玩电脑,玩手机的玩手机,其乐融融,好不开心。

主人房一角

※男孩房

佛山装饰公司

佛山装饰公司

南海东成至盛装饰高端设计部 设计总监

设计收费:面议 元/平             

擅长类型: 家装、豪宅、别墅

在线咨询

扫描二维码关注我们的微信

深圳市聚设汇文化传媒有限公司
主编热线:15602987227
总部:深圳市罗湖区梨园路128号宝能汽车大楼416单元
佛山、东莞、成都、重庆、福州、厦门、南昌、武汉、
杭州、苏州、温州、郑州、长春、沈阳、贵阳、柳州、
哈尔滨、九江等城市设立办事处
© 2017-2021 Jsheh.com 版权所有 粤ICP备17079093号
展开
回到顶部