项目名称 | 佳兆业未来城
项目地点 | 广东 揭阳
开发公司 | 佳兆业集团
硬装设计 | 点石亚洲
软装陈设 | 点石亚洲
项目类型 | 营销中心
摄影机构 | 江南摄影
设计时间 | 2020.11
完工时间 | 2021.01
双溪垂带曳榕城,最爱光潮涌晚生。
半落市埃分皓白,平开天镜下孤清。
遥山助色烟云扫,近野浮空藻荇迎。
长忆玄晖如练语,更添月意作江情。
--明.郭之奇
潮汕之揭阳
揭阳,粤东潮汕三市之一,广东省历史文化名城,潮汕文化发源地,乃人文日新古邑、岭南特色水城、粤东上善新区,现代岭南文化名城,具有悠久的历史,孕育着独具魅力的岭南传统文化。素有“海滨邹鲁”、“国画之乡”、“小戏之乡”、 “龙舟之乡”、 “华侨之乡”。揭阳具有悠久的历史,孕育着独具魅力的岭南传统文化。揭阳人踏实勤奋、精明能干,具有开阔精神保留着对传统广府文化的精神特质,与人为善,以和为贵。现在的揭阳,现代城市文明与传统文化相互交融。
揭阳古城印象素有历史感浓厚的城隍庙、揭阳学宫、揭阳楼、进贤门等历史古迹,这座“水上莲花”的民俗文化风情丰富而淳朴,亦有着诸多非物质文化遗产。
“火龙”、“赛龙舟”、“英歌舞”、“玉雕”、“木雕”......
丰富而富有历史人文气息,延续至今。
深圳售楼处设计师從地域性出發,汲取古代建築智慧,结合历史人文风情元素,通過元素的解构与重组,形神并貌的方式体现,再结构项目的定位属性结合现代最新科技与时尚潮流,
在现代商业空间体验里,
尊崇的历史人文与当代高端潮流科技体验相融展現。
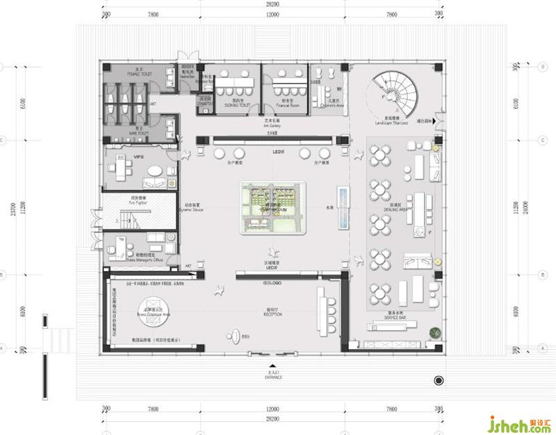
平面
致敬潮汕风水建筑布局
被誉为“东方犹太人”的潮汕人家,他们独有的建筑风格,代表了潮汕悠久的文化底蕴,至今仍然保留着诸多历史古迹,历史建筑与当代新城相持相望。
本次营销中心平面布局致敬潮汕传统风水建筑布局。
“驷马拖车”是众多建筑布局中尤为突出的一种,由“四点金”复杂化发展而来,结合有“三座落”“二落二从厝”等形式。
在当代建筑空间里
以现代艺术致敬揭阳
01/
前厅 · 接待区
Reception Area




揭阳,岭南水城。
水是榕城的重要城市肌里,多条水系绕城而过涌入大海滋润世代人民。我们以创意石材雕刻水波纹,于接待前厅的L型墙面环抱相拥,倒映于光亮的大理石地面连成一片,虚实相接意境顿生。特色大理石艺术化及类石雕的手法处理与拼装后的接待台,一边是庄重、一端是当地艺术,水与石的关系在这里相融相生。
生生不息。
半通透的光电艺术玻璃屏嵌置于前厅与沙盘区之间(显示内容与沙盘区屏幕互动),以动态显示的方式,显示着这座历史文化岭南水城的春夏秋冬与生生不息。
02/
厅堂 · 产品区
Model Display Area

