欢迎光临聚设汇,装修找设计就上聚设汇!
   咨询电话:15602987227
登录    注册
聚设汇
首页 > 商业 > 寻找,光与空间的演绎

寻找,光与空间的演绎

 

▲二楼洽谈区

层次感、韵律感、线条感和自然景致的相容,与空间形成鲜明对比,正所谓一处的亮点,不足以点亮整个空间,而整体化更触动人的感官引起共鸣。    

▲售楼处大堂

▲洽谈区

▲楼梯区

▲接待室

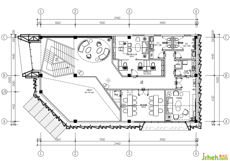
▼平面图一楼

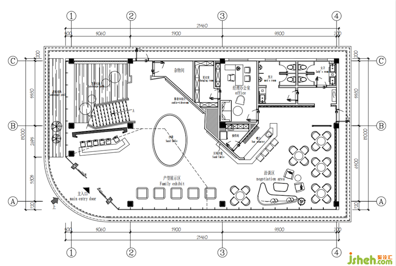
▼平面图二楼

深圳市林尚空间设计有限公司

设计收费:面议       

擅长类型: 地产,住宅

在线咨询

扫描二维码关注我们的微信

深圳市聚设汇文化传媒有限公司
主编热线:15602987227
总部:深圳市罗湖区梨园路128号宝能汽车大楼416单元
佛山、东莞、成都、重庆、福州、厦门、南昌、武汉、
杭州、苏州、温州、郑州、长春、沈阳、贵阳、柳州、
哈尔滨、九江等城市设立办事处
© 2017-2021 Jsheh.com 版权所有 粤ICP备17079093号
展开
回到顶部