项目以“空间、业态、运营”三位一体的创新模式,打造空间功能与人居美学的“再升级”---运用全新概念回应客户真实需求,呈现了融合轻食、创意咖啡、儿童游乐等多重体验的生活聚集地。
Project with "space, forms and operation" trinity mode of innovation, creating space function and living aesthetics "upgrade" - a new concept in response to customer's real requirements, presents an area with multiple functions such as healthy light meal, special coffee and children play area.

金属的冷冽与华贵,通过现代装饰语言的转化,回应了空间应有的厚度与质感,与一旁的玻璃幕墙对望映衬,一面清缓、一面醇厚,显露出和谐的自在状态。
Through the transformation of modern decoration, the cold and sumptuous metal responded to the space thickness and texture, facing to the glass curtain wall, one side is slow, another side is mellow, showing a harmonious state of freedom.


围绕生活的多样性,将空间的“共享性”贯穿其中,使其更加融入城市肌理和日常生活。
With the diversity of life, which runs through the space of "sharing", make its more integrated into the urban texture and daily life.

营销中心设计营造一个干净纯粹、自然质朴却不失细节的空间,在落地窗前看景物与时光的交织流转,享受心灵片刻的宁静。
Creating a clean& pure, natural & simple space that also with abundant details, people can enjoy a moment of peace with the scenery and time interwoven circulation in the French window.

已知的是当下,未知的是未来,前沿的是先锋,自由的是艺术。营销中心设计师以空间平行诗意的灵性,在功能模式之外挖掘出差异化和记忆点,最终实现品牌调性从场景到精神、从影像到体验的深度赋予。
Currently is known, future is unknown, the forefront is pioneer, liberal is art. With the spirituality of parallel space and poetry, the designer excavates differentiation and memories through the functional mode, to realize the meaning of brand from scene to spirit, from image to experience in the end.
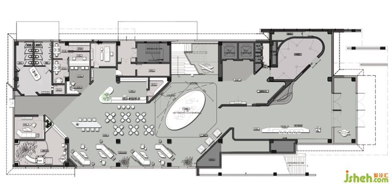
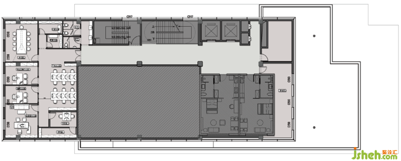
平面图
△ 一层平面
△ 二层平面
△ 三层平面
更多营销中心设计请关注