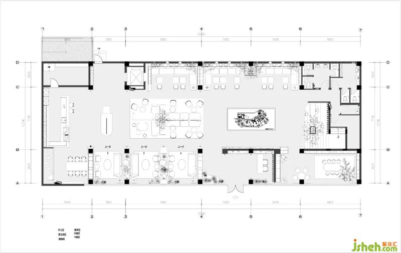
设计师致力于构建一个全新的人居生活消费环境系统,希望通过系统化的生态设计,创造一个沉浸式的生活体验空间。空间中大面积采用原木等材质,使整个空间呈现自然休闲之感,通过暖灰色的水磨石与木饰面的运用,以硬朗的线条、黄色系的点缀色,提升整个空间的质感灵气。原木色让空间惬意、放松,落地窗的大篇幅运用拉近了光影与室内空间的关系。


绿植装置与墙体生长在一起,波纹玻璃粼粼闪光,在平滑中过渡出的座椅线条与弧度,成为空间艺术气质的重要构成元素,与纯白的基调相融相深圳营销中心设计协调。



在这里,盛放着人们最原始的生活梦想,能够找到森林的气息和生活的乐趣。空山雨后,山、树与万物都焕然一新,一呼一吸,皆是最原始的自然生命力。此时深圳营销中心设计此景,花一点时间,享受美食,大概是最美妙的时光。

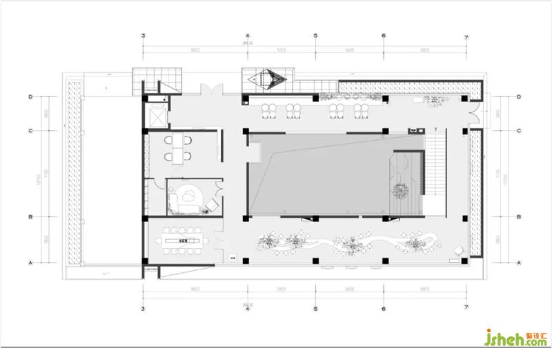
一杯热咖啡之于四季的餐桌而言,是人们最寻常的惬意,也是最真实的情感连接。项目以咖啡烘焙与植物氧乐将空间的温暖衔接,在营造主题咖啡烘焙馆氛围体验的同时,将品牌的商业展示内容以艺术化的设计手法穿插表现于空间之中。通过为每一个区域定制设计富有故事的主题打卡点,让空间游逛成为一场趣味性的探索之旅。


植物,是自然的结晶,它象征了万物新生,是自然最美好的姿态。软装设计根据不同质感、色彩进行对比碰撞,将艺术与性能曼妙融合,对空间进行二次设计,使之呈现为一个全新的花艺装置。不断流转的艺术画面,让人如同置身于大自然,光彩流溢变幻,让一种诗意的生活深圳营销中心设计方式在四季的流转中慢慢滋养。



更多深圳营销中心设计请咨询