项目信息
项目名称:首创拾柒酒店
设计公司:DAGA Architects大观建筑设计
设计团队:任晓伟、许云飞、黄景宁、李云涛
商业策划:麟角设计中心
软装设计:柒合设计
业主公司:首置文科
业主团队:燕山、李跃、郭晨、刘学航
项目类型:改造设计、室内设计
建筑面积:900㎡
设计时间:2019年
建造时间:2019-2020年
项目摄影:刘羽、闫瑞琪
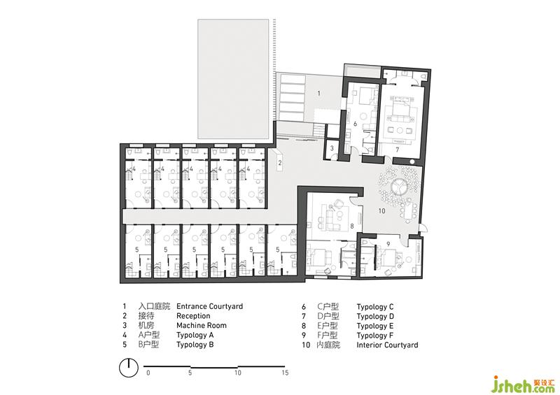
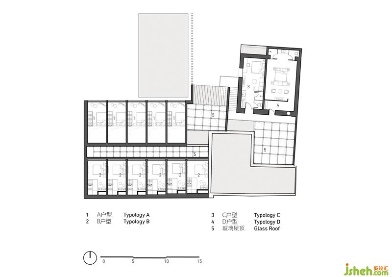
位于东城区永生巷的北京三露厂旧厂区如今被首置文科改造成一个传播全国非遗文化的创新发展平台。隐于其中的非遗主题酒店希望创造一个集现代生活与传统文化于一体的特殊场景体验式酒店。
场地中原有的三组建筑物分别为东南侧三间平顶砖混库房、西侧两排坡屋顶砖木混合结构废弃建筑、以及天桥底部两层的宿舍楼。大观建筑在改造设计中既要使得独立分散并且保存状态各不相同的三组建筑物有序的共存,又能因地制宜的设计出不同的客房风格展示不同的非遗文化。
▼首层平面图
▼二层平面图
▼改造前Beforerenovation
▼场地分析图 Site Analysis Diagram
原始旧厂区的历史悠久,百余年来多次修建改造剩余了大量旧砖瓦堆砌在厂区角落,此次建筑改造很幸运的将其发现并运用于设计之中。
▼改造建筑与原建筑的关系The relationship betweenold and new
▼建筑外立面改造Renovation of façade

▼夜景下的主入口Nightview of the main entrance
▼通往二层客房的楼梯The staircase to the second floor
