▼联合办公空间Co-working space
@刘羽
小枝️@ICYWORKS
▼卫生间Bathroom
小枝️@ICYWORKS
共享际的四层是以公寓为主的功能,在共享际这样的一个空间内,可以满足人们工作、休闲、居住、生活、文娱等各方面的需求。为了给租客提供更多样化的选择,我们设计了两种客房,除了风格色调的差异,材质与软装的搭配也略显不同。
The fourth floor of 5Lmeet is mainly composed of apartments. In a space like 5Lmeet, it can meet people's needs for work, leisure, living, and entertainment. To provide tenants with more diversified choices, we designed two kinds of guest rooms. In addition to the difference in style and color, the combination of materials and soft furnishings is also different.
▼黑白系公寓客房Black and white apartment

小枝️@ICYWORKS
以黑白灰为主色调的公寓,玄关、卫生间与卧室区域形成灰、黑两个独立的色块,简洁干练。卧室大胆地使用水泥墙面漆,搭配富有戏剧感的软装家具,创造一种开放而充满层次的环境。
The apartment with black, white, and gray as the main color, the entrance, bathroom, and bedroom area form two independent color blocks of gray and black, which are simple and capable. The bedroom uses cement wall paint with dramatic furniture to create an open and hierarchical environment.
▼木色系公寓客房Wood color apartment
@刘羽
木色系的客房中,卧室背景墙采用胡桃木色的木格栅与大块饰面板结合的方式,同时兼顾床头板的功能。文创空间设计做旧金属色壁灯与复古开关面板的搭配让空间的细节处更加突显精致。卫生间与衣帽间的开敞式运用,舒适灵活,让租客可以在细节之处体验到空间中蕴含的剧院元素。
In the wood color apartment, the background wall of the bedroom adopts the combination of walnut wood panel, taking into account the function of the headboard at the same time. The combination of distressed metal wall lamps and retro switch panels makes the details of the space more exquisite. The open use of the bathroom and cloakroom is comfortable and flexible so that tenants can experience the theater elements contained in the space in detail.
▼ 剧场维修阶段Theater renovation process
@表哥
南阳剧场的改造,是我们倾注了许多心血的作品,不仅仅是它独特的历史背景,更是因为改造后的建筑也会形成一段属于它的新的历史,会给当代人留下来一段件珍贵的回忆。改造更新项目往往所蕴含的压力比任何新建项目都要大很多,改造的空间,我们为它翻上新的一页,更是在小心翼翼地维护与保留它的存在。
The renovation of Nanyang Theater is a project that we put in a lot of hard work, not only its unique historical background but also because the renovated building will also form a new history that belongs to it, which will leave a precious memory for contemporary people. Renovation and renewal projects often involve a lot more pressure than any new-build projects. We turn a new page for the space to be renovated, and we are careful to maintain and preserve its existence.
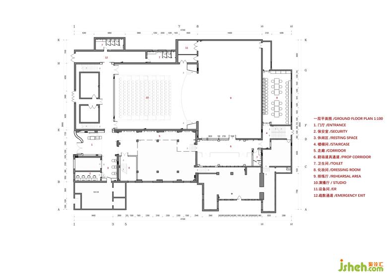
▼ 一层平面图F1 Plan
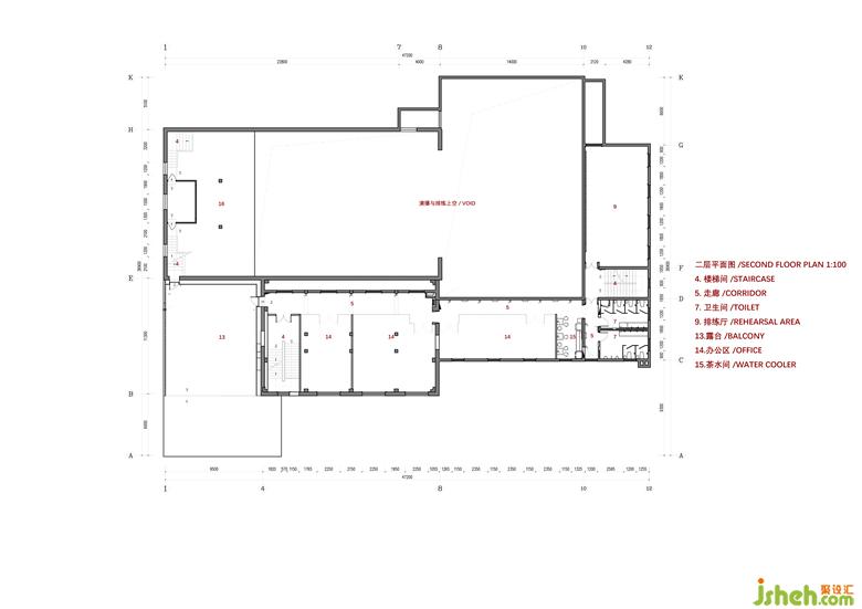
▼ 二层平面图F2 Plan
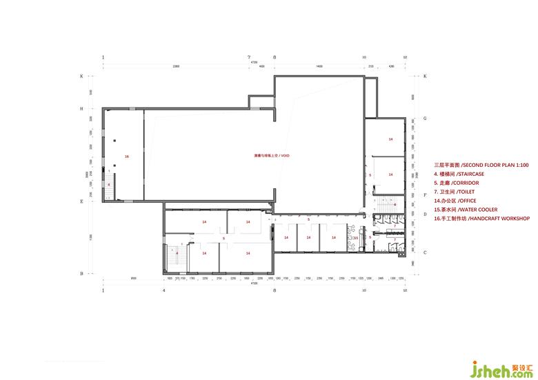
▼ 三层平面图F3 Plan
▼ 四层公寓平面图F4 Plan
更多文创空间设计请关注聚设汇装修平台: