欢迎光临聚设汇,装修找设计就上聚设汇!
   咨询电话:15602987227
登录    注册
聚设汇
首页 > 商业 > 灰盒子办公空间

灰盒子办公空间

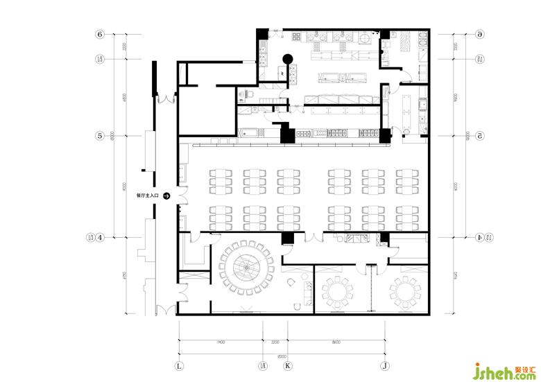
员工餐厅整体呈矩形,就餐区域中将餐桌以阵列的形式排布,协调一致、边界清晰,线形吊灯贯穿始终,延续办公区设计手法的同时,增加空间纵深感。原木色餐桌、明快跳跃的餐椅、缤纷的色彩,在有限的交往中让自由的思想互相碰撞,同时营造井然有序的用餐空间。办公室设计

▼设计细部 Design details

▼功能分析图 Functional analysis diagram

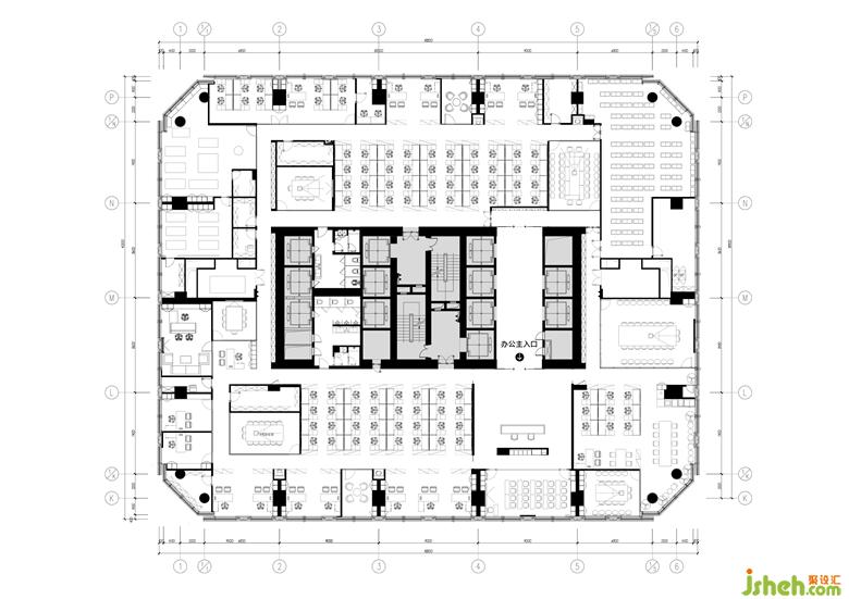
▼办公区平面图 Office Plan

▼餐厅平面图 Canteen Plan

办公室设计,更多室内设计师资讯请关注聚设汇装修平台:

设计收费:面议 元/平             

擅长类型: 文创、住宅、样板房

在线咨询

扫描二维码关注我们的微信

深圳市聚设汇文化传媒有限公司
主编热线:15602987227
总部:深圳市罗湖区梨园路128号宝能汽车大楼416单元
佛山、东莞、成都、重庆、福州、厦门、南昌、武汉、
杭州、苏州、温州、郑州、长春、沈阳、贵阳、柳州、
哈尔滨、九江等城市设立办事处
© 2017-2021 Jsheh.com 版权所有 粤ICP备17079093号
展开
回到顶部