项目地址:深圳·香瑞园
项目面积:175㎡
设计风格:简约
设计团队:尺子室内设计
软装设计:由房到家软装
落地管控:尺子&设美家团队
十几年前,初接手屋主家的设计,要解决的是三口之家的实用性居住需求;如今孩子长大独立,屋主夫妻俩更追求舒适放松的居住状态,很荣幸在人生不同阶段对居住环境的诉求变化时,屋主选择的仍是尺子。
做X小姐家的设计时,恰逢疫情爆发,虽说方案已经敲定,但后续工作无法开展。设计师们利用起这段可贵的宅家期,静下心来对手中的案子复盘、重新打磨,推敲出一版全新的方案,欣喜的是与屋主审美契合,于是果断决定采用。
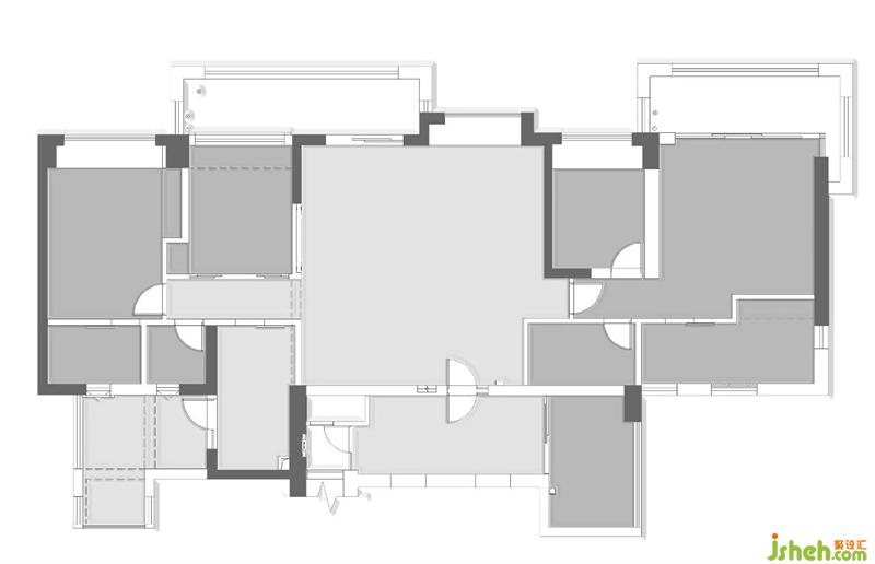
①拆:考虑到这个家只有夫妻俩常住,我们将一间次卧拆除,释放更多可利用空间,打造出开阔通透的客餐厅
②并:餐厅以及次卧的大阳台并入室内主卧阳台纳入卧室做休闲/梳妆区生活阳台和中厨合二为一
③增:借用次卧部分面积拓宽公卫,在保留了公卫原本入口的基础上,增加一扇通往卧室的门,公卫也是次卧的套卫
出电梯后是一个宽阔的门厅,竖线条分割的瓷砖墙面上悬挂着定制的手绘山水油画,白色的中柱造型与其上的摆件将鞋柜切割,灰白木三色地构成了这个有序空间。

公共区域是一个整体,天花流畅的弧度展现出几何的秩序与美感,木色、灰色的色块与材质过渡应对空间的功能划分。
宽阔的房屋中部穿插着一方立柱,与一侧的墙体一同被纯粹的木色包裹住,以达到流畅的视觉过渡。

轻盈的线条自由地勾勒着空间,虚实结合、分而不隔,让整个家保持通透而又具层次感。
灰色艺术涂料奠定空间宁静的基调,浅松石绿与淡黄的单人沙发丰富着客厅的色彩感知,装修设计以细微处的变动打破沉闷,构建出轻松舒适、愉悦惬意的氛围。

墙面装饰画,不规则的线条无限绵延,将视线牵引至地面,圆形的地毯与茶几,一大一小相映成趣。
