所在城市:海南省海口市
业主概况:房地产销售
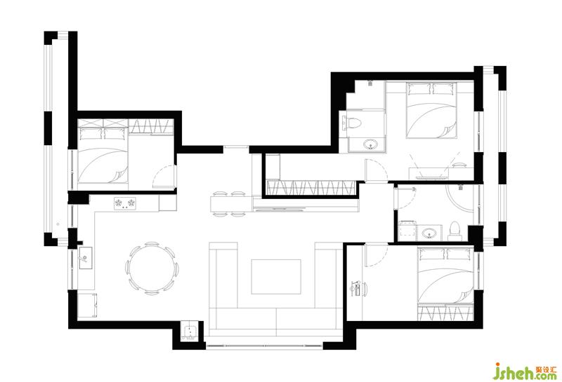
设计需求:酒吧、大大客厅、大大餐厅、大大厨房、衣帽间
建筑面积:100平方
设计风格:北欧
幸福家设计理念:这是一套有别于其他普通公寓的设计作品,设计师在收到设计邀请之后,开始设计之前,室内设计师花费长达一个月的时间去真实掌握客户的需求和愿望,并将之与自己的设计敏感性平衡,充分考虑了客户的个性和生活方式。
这次整体设计的的色彩运用上不超过3种色系,彼此间的比例调配让整体平衡,是这套作品的关键点之一。大面积的实木墙体装饰,宽阔的观景窗,与一系列风格优雅和曲线几何的极简主义家具形成完美的配比。不同的装饰元素巧妙地结合在一起,和谐地融合成一个简约化的整体。这不仅体现了业主的干练、效率的品性,还将展示业主的一种生活态度:终将为优雅生活而欢呼!
这是一套有别于其他普通公寓的设计作品,室内设计师在收到设计邀请之后,开始设计之前,花费长达一个月的时间去真实掌握客户的需求和愿望,并将之与自己的设计敏感性平衡,充分考虑了客户的个性和生活方式。
该作品公共空间以客厅作为第一线,入门处充分考虑了国人隐私习惯,以一道集酒柜、吧台、电视柜、储物柜一体的高档实木家具进行空间切割,产生更好的空间延伸感。
绕过吧台后,为了体现了业主多元化的背景、外向的性格和充满活力的个性。设计团队充分利用了宽敞的开放式空间,创造了一个宽敞的生活和用餐区,业主可以根据自己的需求,招待10多位客人共进晚餐或品酒。
回型沙发的设计布局鼓励客人在亲密的群体中社交,并毫不费力地融入其中。开放式厨房采用灰白双色设计,提供充足的存储空间和座位,不会分散主要社交中心的注意力。
在这里家电和家具的选择对于创造一种美学语言至关重要。运用许多质感家电与实木互相搭配,创造空间独特美感与反差张力。
公共空间采用客餐厨开放格局规划,宽阔场域赋予各建材发挥的空间,木建材柜体与深灰大理石地板、海尔卡萨帝中央空调、灰色皮质沙发沙发等各种建材在室内设计师精准掌握下达到和谐一致。
室内设计师放弃了常规公寓使用立式空调设计,而是选择海尔卡萨帝中央空调,不仅从空间视觉效果上更加简化了装饰的线条,而且还进一步提升了空间温度掌控的精准性和舒适性,让业主有更好的家居生活体验,毕竟这套房子坐落在常年炎热的海口,一台适用的空调选择无疑至关重要。

公共空间采用客餐厨开放格局规划,开放式厨房采用黑白双色设计,与全屋黑色电器互相交映,提升整体视觉效果质感。同时开放式厨房不仅提供充足的存储空间和座位,而且不会分散主要社交中心的注意力。
即使进入卧室,同样延续了大厅的的视觉效果,整体设计的的色彩运用上不超过3种色系,彼此间的比例调配让整体平衡,是这套作品的关键点之一。
更多室内设计师请关注: