设计团队:马蹄莲空间设计
设计时间:2019年
两木,一空间;
一舍,皆生活。
时光辗转,日月更替;木的消费也在飞速变幻。
惊艳于木材的各种创新应用,也对木美化生活怀有期待。
当你我对木的期待不再只是单一的材料,而是一种精神,美感,和科技并存的时候。
它又承载着怎样的使命来丰富我们的生活?
展厅装修设计
音乐和文字,都可以触动人心,而木的魅力在于,它可以什么都不做,就能钻进你的心里。
在心里安放的一桌一椅,收容所有明媚的欢喜,也抚慰秘而不宣的伤痛。
它有我们深爱的所有,充满了自然美好的力量。
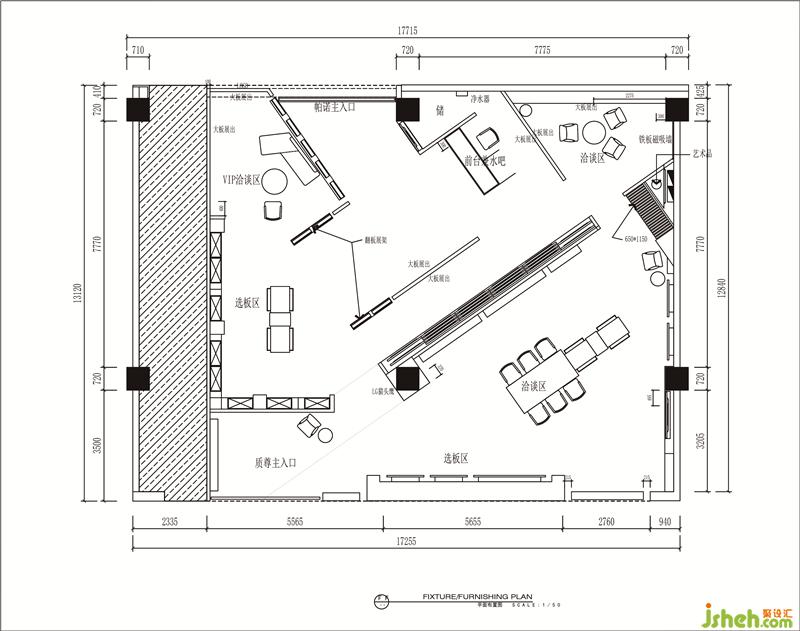
本案为德国帕诺&意大利质尊地板展厅,两大进口品牌,在大环境之下资源互通,相互联合、经营。
展厅装修面积并不是很大,但是产品选择性较多。为了注重客户体验感、增强与进口高端品牌的匹配度。
展厅装修设计并没有选用网红产品店铺的装饰手法,而是更倾向选择了一道“神来之笔”,进行划分、联结。形成了两个互相独立但又紧密连接的空间环境。
Parador帕诺地板——全球地板潮流的引领者
极具设计性的德国高端品牌,与生俱来的家居设计基因及其对最前沿设计概念的把握,使之当之无愧地成为全球地板潮流的引领者,与当今国际知名设计师及建筑师的合作,持续不断地迸发出Parador帕诺的设计时尚之灵感,为人们的家居生活提供最具设计感的地板,为世界上每一个美丽的家提供最优质的地板。

一个与时俱进的时代,创造力永远是人们无法挖掘的潜力股。
地板行业中意大利质尊地板(LISTONE GIORDANO),带着无限的科技创新,在居家空间中,无论从客厅装饰、还是地板艺术。意大利质尊地板每一个细节都能彰显品质,在具有创造力的设计,享受高品质居家生活。
室内设计师在结合展厅的规划定位,创造了运动形式感的空间概念,把空间感、立体感、运动感、节奏感的设计表达结合两个产品展示切入主题定位。
既体现了德国产品的宁静、追求品质,也赋予了意大利产品的艺术性。
墙面上选用烤漆黑色板材,运用磁吸的方式进行表现。
顶面的轨道灯也隐约形成了路线指引的作用。
利用地面折线分割跑道的表现,与背景形象的鲜明颜色相互配合产生强烈视觉冲击效果,令人耳目一新,印象深刻。
色彩上控制为黑、灰两个色彩,从而体现出色彩斑斓变化的地板。
延续了亲切的感觉,行间序列呈开放式,各区之间并非完全独立,相互之间的展示都能够呼应。
通过其开放式的手法,使得空间相互空间更自然融合,交互作用。