设计单位: 深圳市古柏设计艺术顾问有限公司
项目设计师:陈立天(Sky Chen)
设计师职位:创始人/创意总监
项目地址:深圳蛇口半岛城邦三期



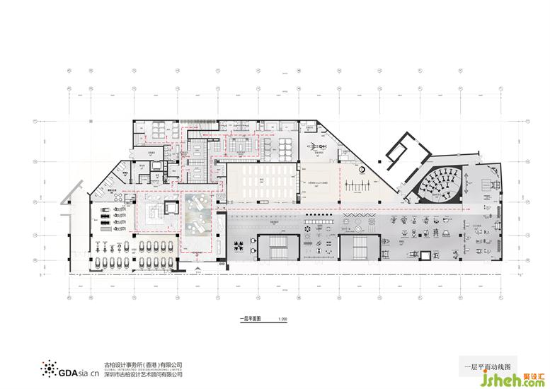
会呼吸的健身会所
健身会所设计以现代轻奢海洋风格为设计基调,通过运用简练的线条及块面的设计元素,呈现出空间的结构美及形式美,意境美。
拥有得天独厚景观资源的半岛城邦健身会所,面朝大海、背倚青山,在满足健身爱好者需求的同时,也提倡着一种健康、时尚的“新”都市生活方式。
以自然界的山,海,林,云为元素,抽象化提炼“观山海,寄情山林之间,饮云露之逸气”语言意境,搭配高档天然石材,木材,使用环保健康,吸音降噪的硬包,运动地板,在植物的围合下,营造出“步移景异,苍翠欲滴,光影斑驳”之感。
空间形态:线面结合,立体构成,形状搭配、空间层次感、明暗对比
色彩定位:贴近自然
入口前厅:木质、绿植、衔接
楼梯区域:半开放半封闭、空间美、搭配石材、力量线条美、陈设配饰、艺术感