欢迎光临聚设汇,装修找设计就上聚设汇!
   咨询电话:15602987227
登录    注册
聚设汇
首页 > 家装 > 广州旧改设计:老破小爆改中古风,拱形解决梁柱问题

广州旧改设计:老破小爆改中古风,拱形解决梁柱问题

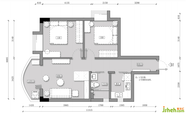
主人房也是跟客厅一样,有一条梁柱在床的左侧,广州旧改设计为了改善这个问题,我们做了一个半拱形,既不影响衣柜的位置,也不影响床的尺寸。再结合半圆的油画挂饰和椭圆的床头灯,让硬装的形态和软装的元素相呼应。

更多广州旧改设计请关注

广州诺壹空间设计有限公司

设计收费:300 元/平             

擅长类型: 住宅

在线咨询

扫描二维码关注我们的微信

深圳市聚设汇文化传媒有限公司
主编热线:15602987227
总部:深圳市罗湖区梨园路128号宝能汽车大楼416单元
佛山、东莞、成都、重庆、福州、厦门、南昌、武汉、
杭州、苏州、温州、郑州、长春、沈阳、贵阳、柳州、
哈尔滨、九江等城市设立办事处
© 2017-2021 Jsheh.com 版权所有 粤ICP备17079093号
展开
回到顶部