项目名称 | 月印万川·隐屏
Project Name| Jnana
甲方单位 | 三木集团
Client | Sanmu Group
项目地点 | 南平武夷山
Location | Wuyishan,Nanping
项目类别 | 商业空间
Project Category | Commercial Space
项目面积 | 108㎡
Area | 108 sq.m.
硬装设计 | 大集空间
Hard Deco. | Daji Space
软装设计 | 柏年印象
FF & E | HCD IMPRESS
建筑设计|合道建筑
Architecture Design | Hedao Architecture
完成时间 | 2020年1月
Completion | Jan. 2020
项目摄影 | 麒文摄影
Photographer | Qiwen Photography
中国武夷山,隐逸文化与自然的世界双遗,流传千年的茶文化在山水竹林间探寻平静心灵的更高层次。
客户希望在此安放一处全龄住假栖居地,给人们带来舒适惬意的山居生活美学。会所设计
△武夷山印象(图源网络)
01
THINKING
思考
-
如何将武夷山自然、人文与艺术融合
创造属于当代人新的山居文化
重塑人们对既有“山居生活”的认知
成为本次设计探索的方向
以‘禅茶’为线索
讲述武夷山的惬意与人文
02
INTERPRETATION
诠释
-
设计取意武夷山隐栖下的禅茶文化
借由当代、简雅的设计语言
将人文情怀融入多元化的艺术空间
让居住回归诗意的从容
引领一种隐逸山居的休闲度假生活
息心茶室| Spiritual Habitat

深谙竹与茶在文化上的某种交相辉映
引入清雅灵动的竹木、层次美感的格栅
营造一种隐归山林的吃茶氛围
武夷茶文化中“正、清、和、雅”的精神在此复现。会所设计

将茶色提纯和处理为空间的主调
移入自然生长的绿枝
释放一种素雅、静谧的空间气质

△ 唐·陆羽《茶经》
器型精致的茶具
述说着武夷与茶密不可分的联系
一室、一茶、一花、一画
优雅与禅意交融,独特的东方韵味。会所设计

-
去繁就简,让灵感在谈话中碰撞
空间的美好不止于流露出艺术的视觉表象
更在于重塑一种属于当代人的诗意慢生活。会所设计
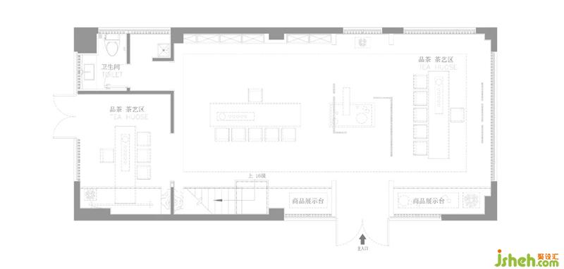
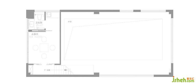
▽平面图
一层
二层