04
松弛
自在的心境
随着路径前移,或是探索、或是收获——后场褪去了武装,享受松弛自在的当下。墙上的不规则画布,是对“纸样”的再度呼应,缀以灵动的金属线条,恰似品牌对服装搭配的别致有趣。原创设计的沙发与边几,以柔软圆润的组合呈现,给休闲区带来更多舒适自如的氛围。
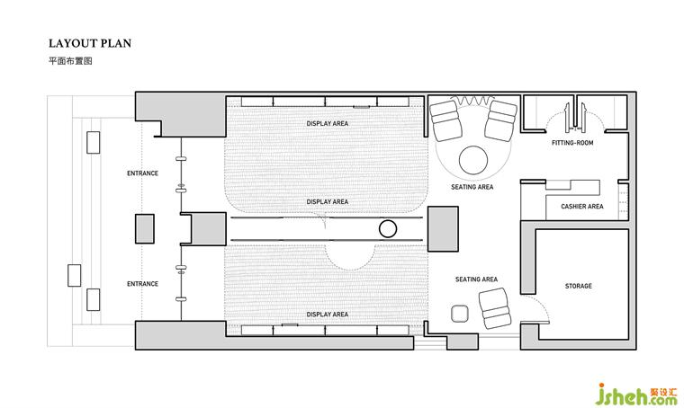
展厅设计收银台由延续着外立面边框的色彩,由天然石材围合而成,正面朝向前场陈列区域,方便来访者识别及销售引导。侧面则分割一块区域用于挂衣,更充分地进行空间利用。
试衣间作为店铺最隐秘场所,是最能表达细节的设计区域。挂衣钩由制衣过程中的“固定钉”演变而来;石材作为空间表皮,展示着自然纹理与温暖色彩,营造着更松弛的氛围。而考虑到石材的凹凸质感可能对来访者、衣服有所剐蹭,对其表面进行了精心打磨,既保留了其质地的天然美感,又彰显了品牌对消费体验的极致追求。
当试衣间门紧闭时,呈现出平面化状态,犹如未经裁剪的纸样一般。展厅设计以中间的轴线为界,门如同被巧妙地从中线裁剪开,从平面化转变为立体状态。开合之间,也暗含着消费体验的先后变化。
多彩的灯光模式,为品牌运营提供了不同的情境氛围,满足其不定期举办的展览、艺术沙龙、交流会及直播等多样化活动需求。细致的表达、多元的文化、简洁的呈现无不体现设计与生活的仪式感,更展现了品牌的深厚底蕴与匠人的精湛技艺。
AVVENN所秉持的“先锋的和谐主义”,是植根于品牌的核心。正如服饰之于个体,不仅是衣取蔽寒的工具,更是内在情感与追求的直观表达。品牌空间的具象呈现,在达成现代审美的同时,更需要超越单一的空间界限,构建出一个充满创意与想象的精神世界,消费者才更有机会触及到品牌的温度与内核。


更多展厅设计请关注聚设汇装修平台: